Zero Energy Homes

Green Homes Business Directory

Green building & design


 

459 Sound Drive, PO Box 66, Mount Desert, ME
207-479-5888
zeroenergyhomes.coop
info@zeroenergyhomes.coop

 

As Maine's first employee-owned cooperative in modular and panelized housing, Zero Energy Homes addresses the interconnected crises of affordable housing scarcity, climate change, and rural economic development by building more attainable net zero energy homes.

We prioritize local wood materials and keep economic benefits circulating in Maine communities through local supply chains and worker ownership. Using net zero energy principles, our homes promote energy independence and significantly reduce monthly utility costs for customers through net-zero performance.

Zero Energy Homes serves homebuyers who live year-round in Maine with special focus on Mainers who are priced out of the housing market and earn between 80- and 160-percent of area median income. Through off-site modular construction, we build efficiently, demonstrating that sustainable, locally-sourced, high-performance housing can be more accessibly priced.

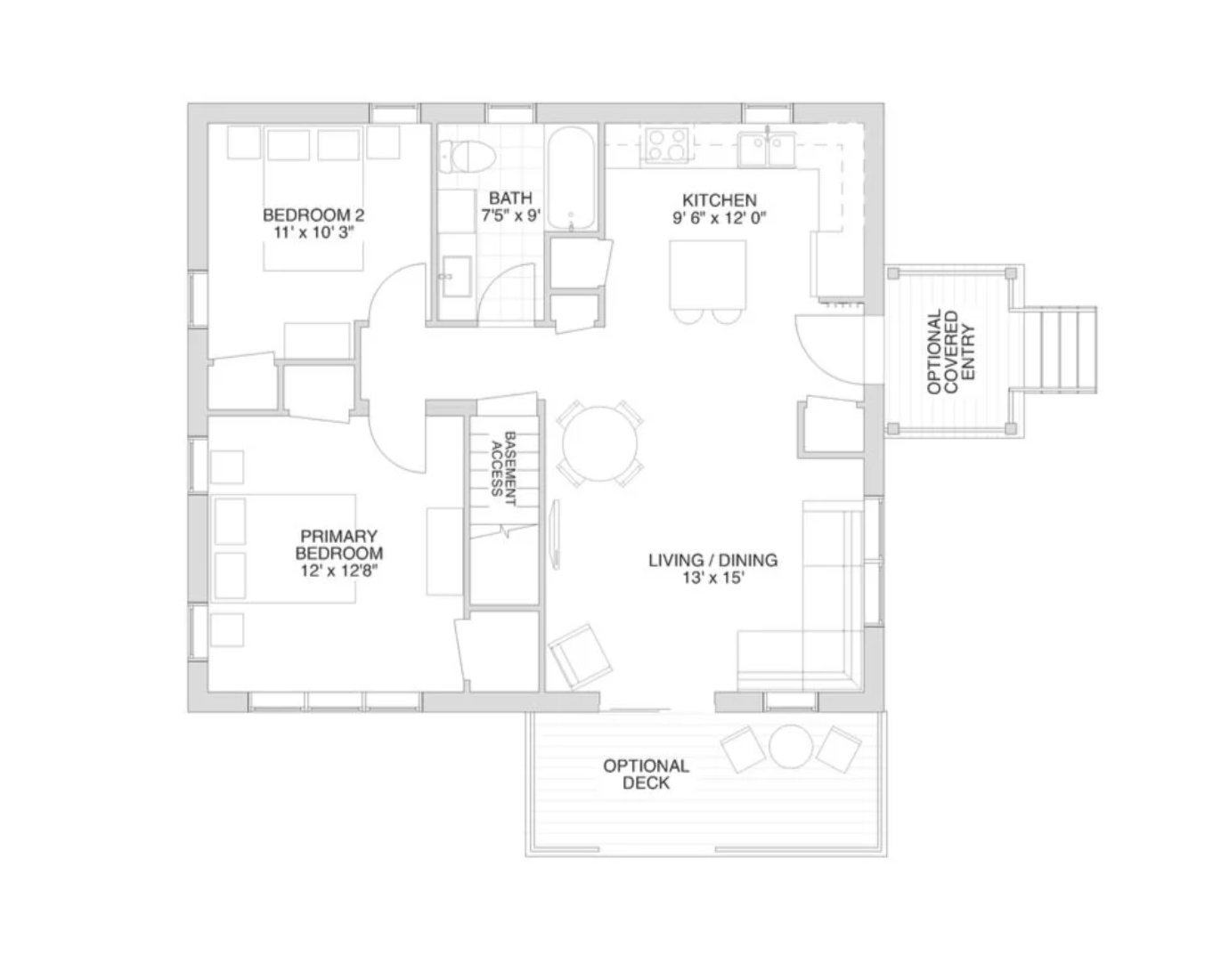
Our homes are available statewide. Visit our website to view floor plans, and fill out our express interest form to begin your homebuilding process.

Sustainability

Zero Energy Homes offers homebuyers the opportunity to live in a home that generates as much clean energy as it requires. We are committed to prioritizing sustainably harvested forest products and using 80%+ Maine and regional building materials, minimizing carbon pollution from transportation.

I live and work in Southern Maine, and my vision has always been to build locally to support my community with a focus on sustainability. In my search to find a company to build with, I was met with one major obstacle, cost. Near-net-zero homes built sustainably often come with a large price tag, which is unfortunately out of my reach as a single-income household working in the nonprofit world. Then I came across Zero Energy Homes, and the concept was exactly what I was looking for: modular homes built with largely Maine-made materials and a finished product that is net zero upon completion. Zero Energy Homes is also striving to make these homes affordable for the ‘average Jane’ just like me!
— Camille Seo, ZEH Customer, Gorham, ME
After buying land in 2021 and trying unsuccessfully to find the right builder for years, I was ready to give up. Then I found Zero Energy Homes. We broke ground in October and here it is December and the house has been set. I couldn’t be happier.
— Paul Smith, ZEH Customer, Trenton, ME

ARTICLES THAT FEATURE ZERO ENERGY HOMES